Snart startar garageprojektet
Du som berörs - glöm inte att flytta ut ditt fordon senast den 3 maj!
GARAGERENOVERING MAJ-JUNI 2026
Som tidigare meddelats på våra årsstämmor, så är vissa ytor i garaget i dåligt skick och behöver gjutas om eller lagas. Detta går inte att utföra samtidigt som garaget är i drift, varför det stängs helt under den tid som arbetet pågår.
Samtliga garageplatsinnehavare är informerade och hyror för garageplatser och fasta avgifter för laddboxar pausas i två månader.
Arbetet utförs 4 maj – 3 juli.
Alla fordon måste vara ute ur garaget senast söndag 3 maj.
Alla MC-garage måste tömmas och lämnas olåsta från 3 maj.
Hela garaget blir en byggarbetsplats. Därför kommer alla nyckelbehörigheter att tas bort under hela renoveringsperioden. Endast byggpersonal tillåts gå in i garaget.

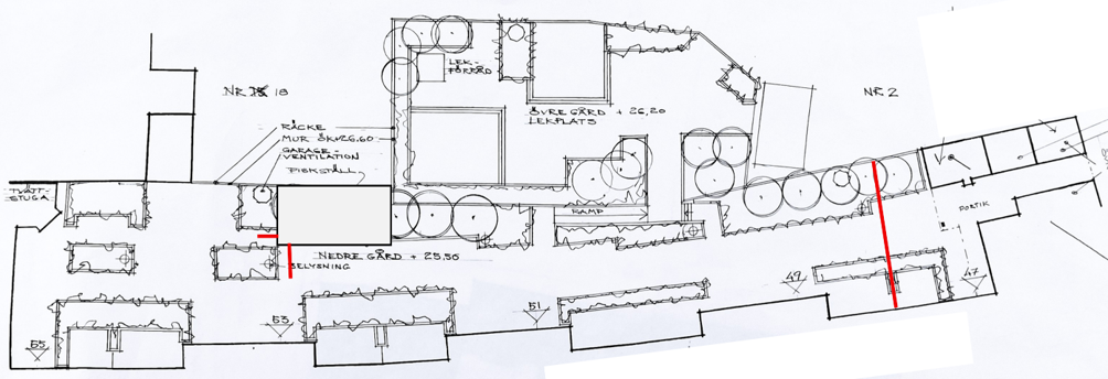
Cykelrummet i 55:an kommer endast att nås genom servicegången från Nordenskiöldsgatan, se bild nedan. För våra hyresgäster gäller samma väg för åtkomst till soprummet.

Rivning kommer att göras med vattenbilning, en tystare metod än traditionell bilning. Vi hoppas att vi kan undvika svåra störningar på det viset. Vattenbilning beräknas pågå till och från under cirka två veckor (v 20-21) 11-22/5. Övriga störande arbeten är borrningar i betong och allmänt byggbuller. Entreprenören får inte påbörja störande arbeten före kl 7.00. Två slutna containrar placeras på gräsytan framför Johan Herr, Linné Hörsel och Vegasolariet (grön yta på bilden nedan). Dagtid kan det förekomma visst ljud från dessa, men förhoppningsvis inget störande.

Läckande fogar i gårdsbjälklaget (röda markeringar nedan) åtgärdas i samma entreprenad. Preliminärt utförs det arbetet i april. Gården grävs upp lokalt på två ställen och läckorna tätas. Omfattningen är inte klart definierad - det beror på hur det ser ut när vi öppnar. Entreprenören skall hålla öppet för gång- och cykeltrafik, liksom för sophantering, under hela arbetet.

